Eladó különleges adottságú családi ház Börzsönyligeten, patakparton

Kattintson a képre, galéria nyílik!

Pár mondatban az ingatlanról

Eladó különleges adottságú családi ház Börzsönyligeten – exkluzív otthon vagy prémium vendégház lehetőségével 

Eladó Kismaros–Börzsönyliget közelében, Szokolya csendes, lakóövezeti részén, páratlan természeti környezetben egy 2009-ben épült, egyedi tervezésű, 360 nm-es, háromszintes, 7 szobás családi ház, kiváló elosztással, minden szinten fürdőszobás kialakítással, 1360 nm-es, közvetlen patakparti telken. 

Az ingatlan valódi ritkaság: a Morgó-patak völgyében, erdőkkel ölelve helyezkedik el, ahol a természet közelsége és a nyugalom minden nap része az életnek. A ház kialakítása és mérete ideálissá teszi exkluzív panzió, boutique apartmanház vagy prémium bérbeadási célú hasznosításra, illetve privát rezidenciaként is kiváló választás. 

Tér és fény harmóniája 

A ház belső tereit a nagyvonalúság és az átgondolt térszervezés jellemzi. A nappali központi élettere lenyűgöző méretű üvegfelületekkel nyílik meg a környező erdő látványára. A természet szinte a tér részévé válik.
Az egyedi gyártású, vörösfenyő nyílászárók melegséget és eleganciát sugároznak. 

A tér fókuszpontja a kézműves igényességgel, keszthelyi kővel burkolt vízteres kandalló, a nappali valódi középpontja, amely memcsak hangulatot, hanem hatékony fűtést is biztosít.

Prémium élettér minden szinten 

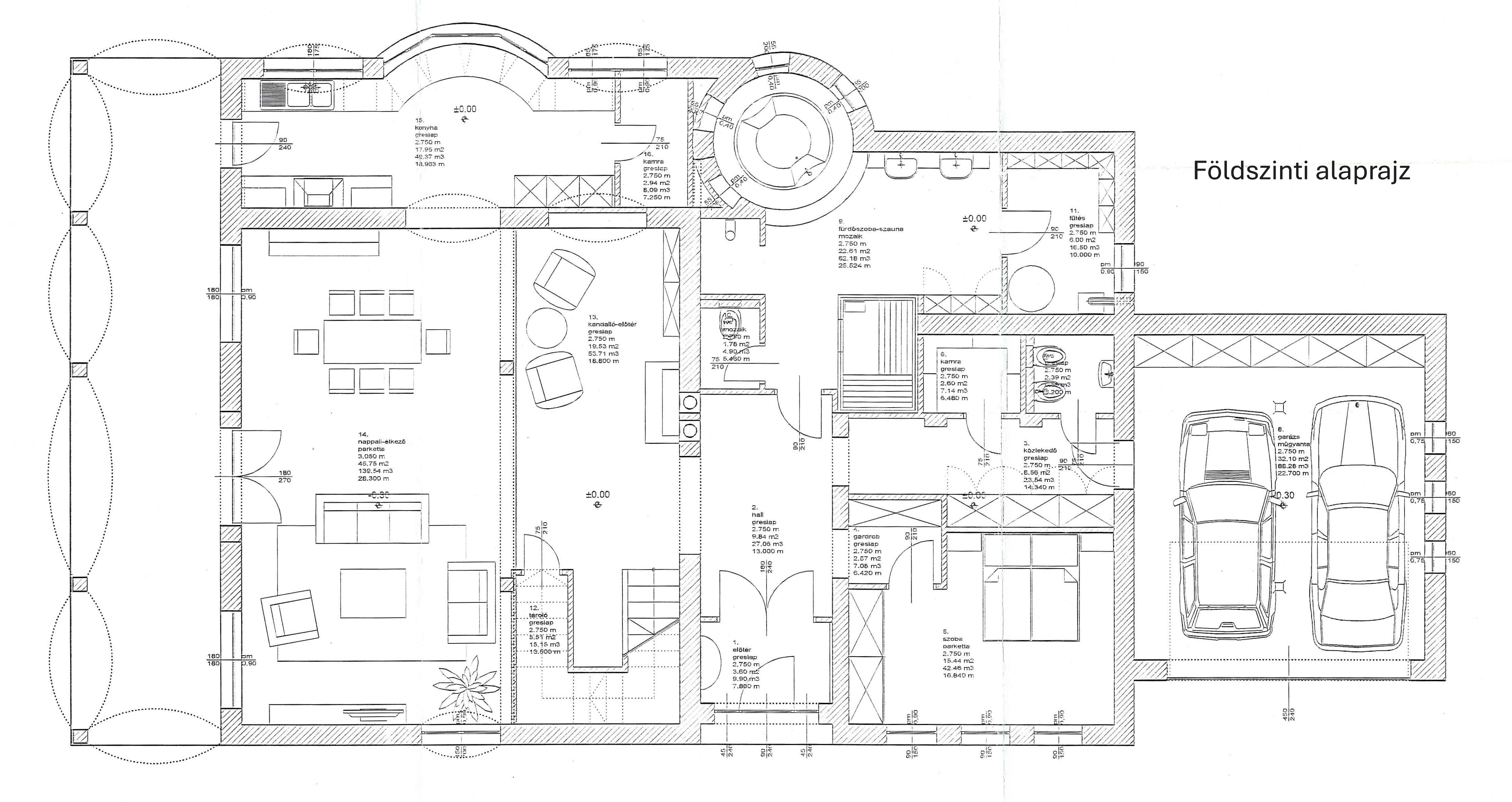
Földszint 
A szélfogón keresztül érkezünk a tágas, napfényes nappali–étkező térbe, ahonnan közvetlen kijárat nyílik a 35 nm-es fedett teraszra. A különleges hangulatot a nagyméretű, hőszigetelt, egyedi vörösfenyő nyílászárók biztosítják, melyek gyönyörű kilátást nyújtanak a környező természetre. 
A tágas konyha tölgyfa beépített bútorral és kamrával rendelkezik, ablakai a patakra néznek. 

Ezen a szinten található továbbá: 
• egy kényelmes hálószoba 
• egy nagyméretű fürdőszoba (zuhanyzóval, külön WC-vel, szauna/törökfürdő lehetőséggel) 
• külön WC bidével 
• tároló helyiség 
• kazánház (központi porszívóval, vízlágyító rendszerrel) 
• közvetlen kapcsolattal rendelkező kétállásos garázs 
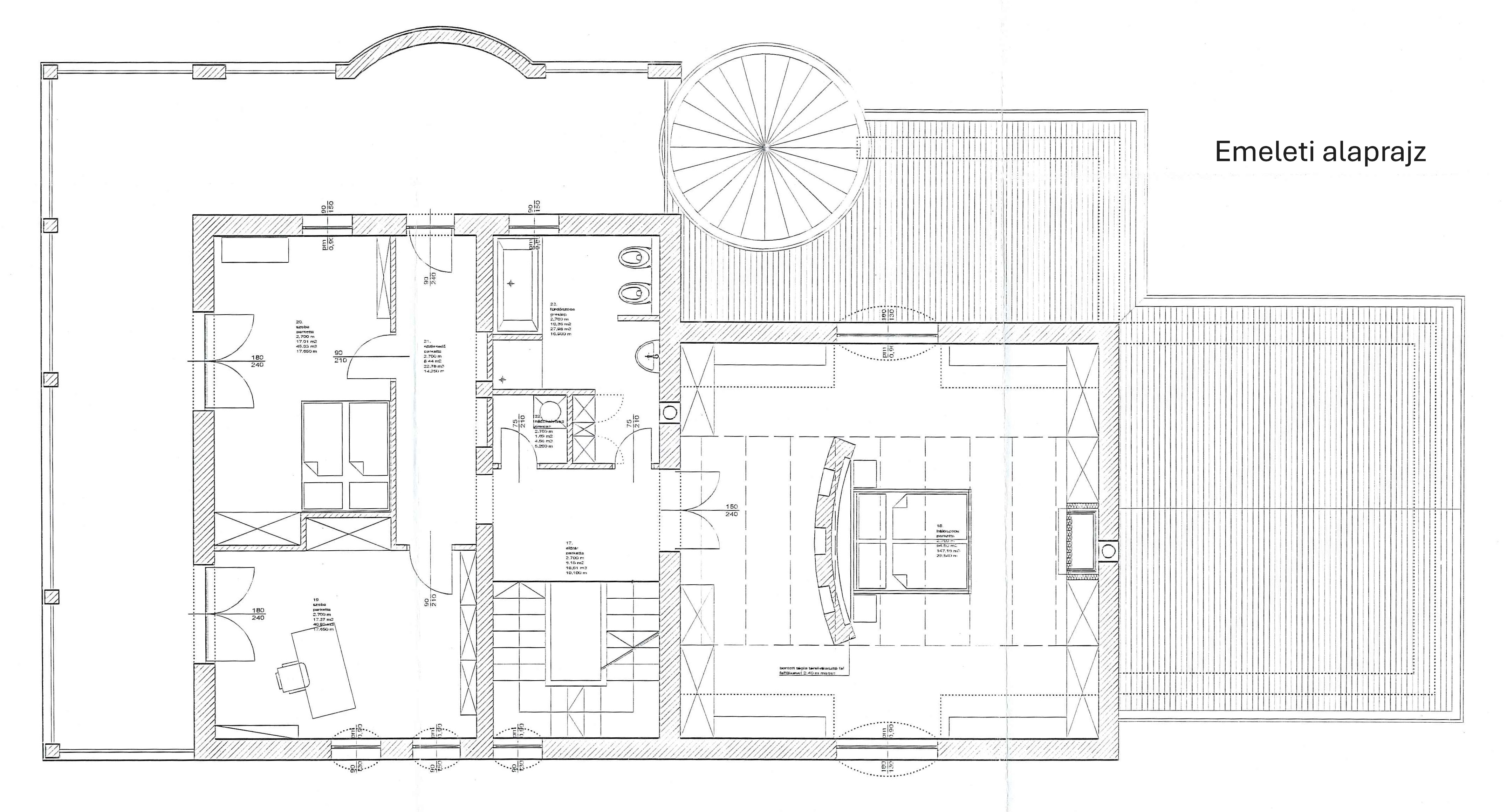
Emelet 
Az első emeleten három hálószoba, egy fürdőszoba (WC-vel, bidével) és háztartási helyiség található. Innen és a közlekedőből is megközelíthető a 58 nm-es napozóterasz, ahonnan lenyűgöző panoráma nyílik a völgyre és az erdőkre. Minden évszakban más arcát mutatja.
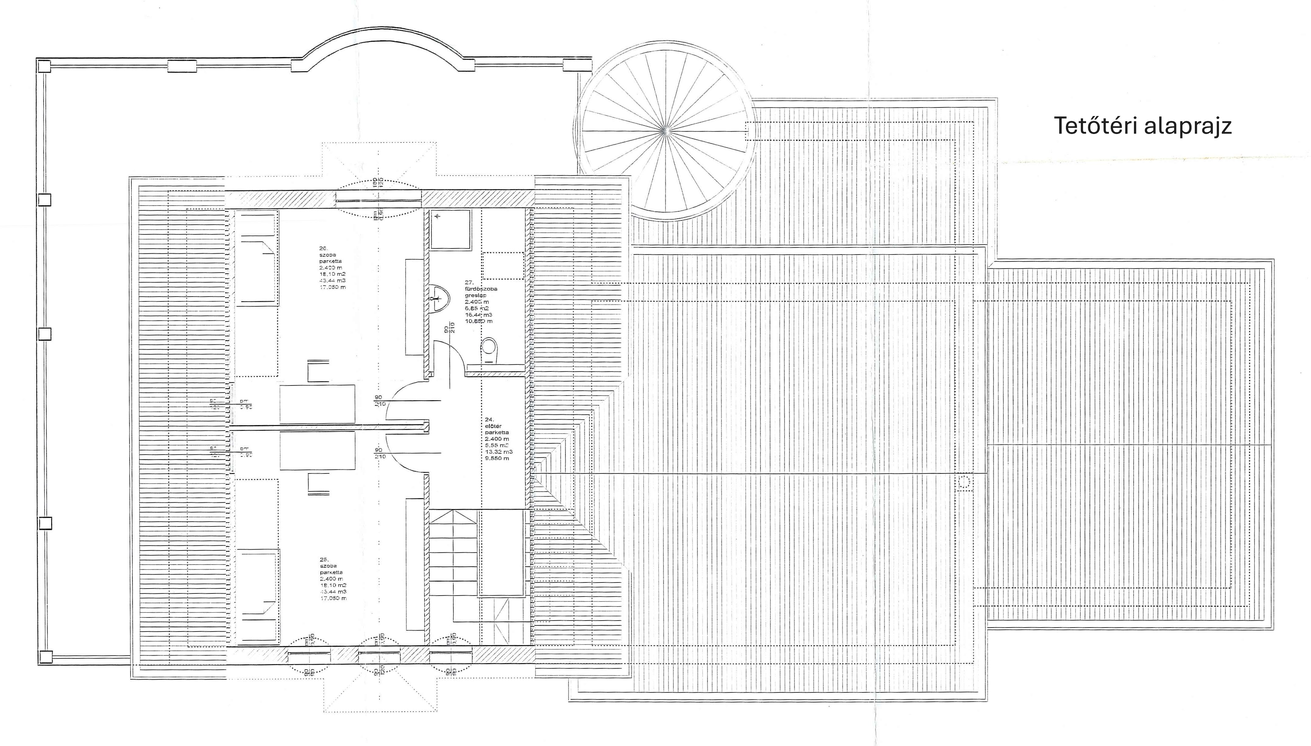
Tetőtér 
A legfelső szinten két hálószoba és egy fürdőszoba kapott helyet. A lépcsőházban végig megjelenik a természetes keszthelyi kő, amely különleges, elegáns hangulatot biztosít. 

Személyre szabható luxus 

Az ingatlan jelenlegi állapotában lehetőséget kínál arra, hogy az új tulajdonos saját stílusára formálja: 
• burkolatok (emeletek, teraszok, lépcső) 
• belső ajtók kiválasztása 
• beépített bútorok kialakítása 
Így a végeredmény valóban egy egyedi, személyre szabott luxusotthon lehet, amely egyben értéknövelési lehetőséget is jelent.

Műszaki tartalom és komfort 

A modern gépészet és az energiahatékonyság kiemelt szerepet kapott: 
• kondenzációs kazán, kétkörös fűtési rendszer 
• padlófűtés és radiátoros hőleadás 
• vízteres kandallók puffer tartállyal (1000 liter, két hőcserélő) 
• napkollektor előkészítés 
 • központi porszívó és vízlágyító rendszer 
• riasztórendszer (mozgás- és nyitásérzékelők) 

Befektetési lehetőség 

Az ingatlan adottságai – a több szinten kialakított hálószobák és fürdőszobák, valamint a patakparti elhelyezkedés – ideálissá teszik több apartman kialakítására vagy prémium vendéglátási célú hasznosításra. A Budapest közelsége és a természetközeli környezet kiemelkedő keresletet biztosít rövid és hosszú távú bérbeadás esetén is. 

Életstílus, nem csupán ingatlan 

A környék a természet és az aktív kikapcsolódás kedvelőinek paradicsoma. A Börzsöny közelsége kiváló lehetőséget nyújt túrázásra, kirándulásra, a közeli Királyrét és a Nagy-Hideg-hegy egész évben népszerű célpontok. A Duna közelsége vízi sportokra is lehetőséget ad. 

Megközelítés

A természetközeli elhelyezkedés ellenére a megközelíthetőség kiváló: 
• Budapest: kb. 50 perc autóval (M2) 
• Vác: 15 perc 
• vonattal a Nyugati pályaudvarról ~40 perc 
Kismaros és Szokolya néhány percen belül elérhető, ahol minden fontos infrastruktúra (iskola, óvoda, orvos, gyógyszertár, posta, pékség, üzletek) rendelkezésre áll. 

Ritka adottságú ingatlan a Dunakanyar egyik legkeresettebb részén. Életminőség és érték egy helyen.

Videók az ingatlanról

Eladó Családi Ház Kismaros

Irányár: 319 000 000 Forint

Az Ön kapcsolattartója


Szemerédi Kriszta

+36 / 70 602 0041
Hirdetés Azonosító: #67

Ingatlan mérete 360 nm
Telek mérete 1360 nm
Szobák Száma 7
Közművek Gáz, Víz, Villany, Zárt rendszerű Emésztő
Szintek Száma 3 szintes
Fűtés Típusa Kondenzációs gázkazán, Vízterű kandallók fűtéssel
Komfort Komfortos
Tájolás Déli fekvésű
Építés Éve 2009
Szerkezet Tégla
Nyílászárók Fa, Hőszigetelt üvegezéssel
Tetőfedési Mód Cserép
Extrák Riasztó, Központi vízlágyító rendszer, Központi porszívó, Kétkörös fűtési rendszer, Napkollektor gépészeti előkészítés, Napozó terasz

Földszint

  • előtér 13,44 nm
  • nappali - étkező 65,28 nm
  • konyha 17,95 nm
  • kamra 2,94 nm
  • tároló 2,60 nm
  • közlekedő 8,56 nm
  • szoba 15,44 nm
  • gardrób 2,57 nm
  • fürdőszoba 22,61 nm
  • wc 1,78 nm
  • kazánház 6 nm
  • tároló 5,51 nm
  • wc 2,39 nm
  • garázs 32,10 nm
  • fedett terasz 35 nm

Emelet

  • közlekedő 14,59 nm
  • szoba 54,50 nm
  • szoba 17,37 nm
  • szoba 17,01 nm
  • fürdőszoba - wc 10,36 nm
  • háztartási helyiség 1,36 nm
  • padlástér 16 nm
  • napozó terasz 58 nm

Tetőtér

  • közlekedő 5,55 nm
  • szoba 18,10 nm
  • szoba 18,10 nm
  • fürdőszoba - wc 6,85 nm

Találja meg otthonát velünk!

Próbálja ki ingatlan keresőnket!

Ingatlan kereső »

Hitelre van szüksége a vásárláshoz?

Díjmentes hiteltanácsadás!

Ingyenes hitelügyintézés »

Eladná / Kiadná ingatlanát?

Miért várna! Nálunk Ön az első!

Így dolgozunk »

+36 / 70 602 0041 Várjuk hívását!

Hívjon minket bizalommal!

Kapcsolat »


Weboldal készítés és üzemeltetés: mWeb