Eladó nyaraló Kismaroson, panorámás kilátással a visegrádi várra

Kattintson a képre, galéria nyílik!

Pár mondatban az ingatlanról

Eladó nyaraló Kismaroson, panorámás kilátással a visegrádi várra 

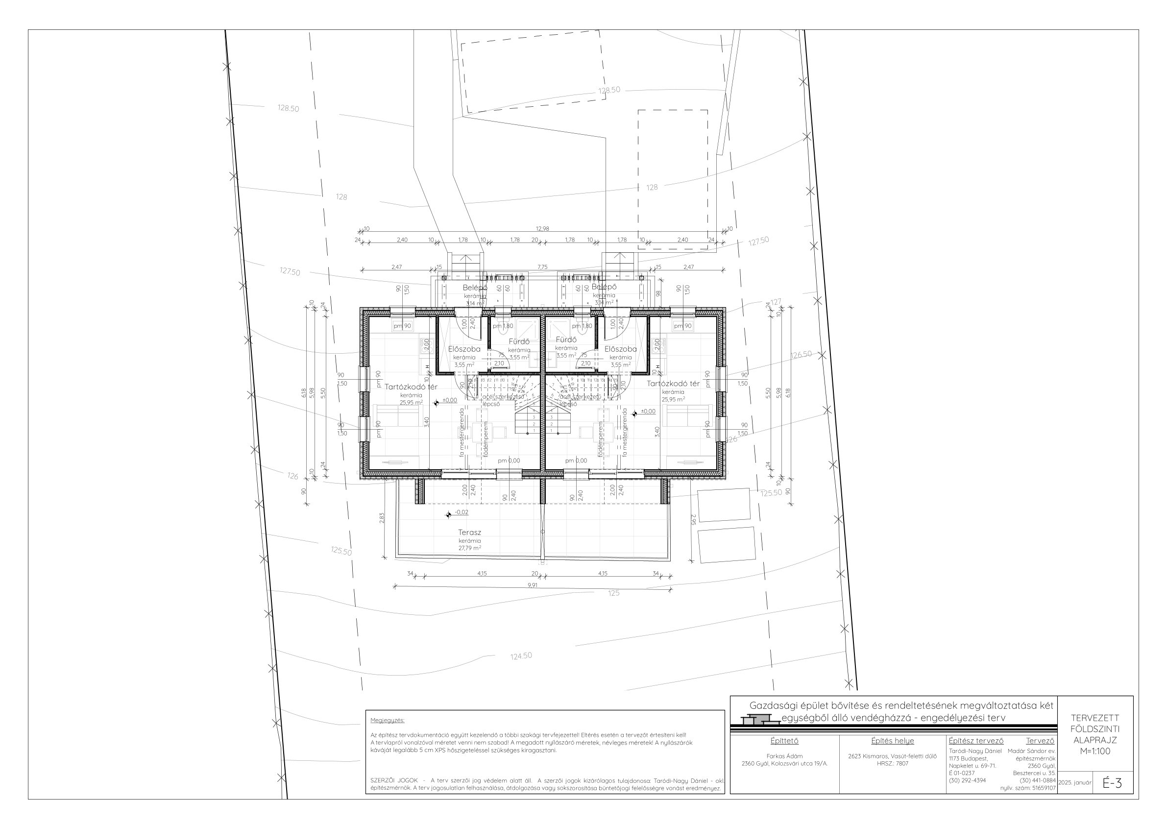
Eladó Kismaroson, 1001nm-es telekre tervezett új építésű, két egységből álló vendégház, építési engedéllyel, közútkezelői hozzájárulással és a MÁV hozzájárulásával. Tervezett épület bruttó alapterülete terepszint felett 110,03nm. A tervezett épülethez már rendezett közútkapcsolat tartozik, kialakítva a gépkocsi és gyalogos bejárót, amely szintben csatlakozik az ingatlan előtt meglévő aszfalt burkolatú úthoz. 

Övezeti besorolás 

Az ingatlan az Üh-2-es hétvégiházas üdülőövezetben van, melynek beépíthetősége 15%, az övezetben előírt 4,0 méter épületmagassággal és szabadon álló beépítési móddal

Telek adottságai

Az 1001nm-es telek téglalap alakú, É-D-i tájolású, melynek északi oldala a Vasút-feletti dűlővel, a déli oldala a vasúttal határos, a többi oldalról beépített ingatlanok veszik körül. 

Környezet 

Az aszfaltozott utcában, igényes családi házak szomszédságában lévő 1001nm-es telken jelenleg egy 40nm-es, fa szerkezetű nyaraló van, hatalmas terasszal, panorámás kilátással a visegrádi várra. Az enyhén lejtős, termő fügebokrokkal tarkított kert rendezett. Kismaroson óvoda, iskola, háziorvosi rendelő, gyógyszertár, posta, pékség és számos vásárlási lehetőség szolgálja kényelmünket. 

Közművek 

Közműórákkal felszerelt vezetékes víz és villany az ingatlanban bevezetve, gáz az utcából elérhető. A nyaraló jelenleg elektromos fűtőberendezéssel fűthető. Újonnan épített zárt szennyvíztárolóba történik a szennyvízelvezetés. 

Megközelíthetőség 

A rendkívül jó közlekedésnek köszönhetően, Kismaros könnyen és gyorsan megközelíthető Budapestről. Autóval az M2-es autóúton 40 - 50 perc alatt, Vácról 15 perc alatt elérhető az ingatlan. Budapestről a Nyugati Pályaudvarról a "zónázó" vonattal 39 perc alatt, Vácról 10 perc alatt elérjük Kismarost. Kismaros központjától, 10-15 perces sétával érhetjük el a nyaralót.

Videók az ingatlanról

Eladó Nyaraló Kismaros

Irányár: 34 900 000 Forint

Az Ön kapcsolattartója


Szemerédi Kriszta

+36 / 70 602 0041
Hirdetés Azonosító: #233

Ingatlan mérete 40 nm
Telek mérete 1001 nm
Szerkezet Fa
Szobák Száma 1
Szintek Száma 1 szintes
Fűtés Típusa Elektromos
Közművek Víz, Villany, Emésztő
Komfort Félkomfortos
Tájolás Déli fekvésű
Építés Éve 1985
Nyílászárók Fa
Tetőfedési Mód Pala
Extrák Építési engedély két egységből álló vendégház építésére, kialakított gépkocsi és gyalogos bejárat-rendezett közútkapcsolat, újonnan épített zárt szennyvíztároló
Övezeti besorolás Üh-2 Hétvégiházas üdülőövezet
Beépíthetőség 15 %
  • előtér - étkező - konyha sarok
  • nappali - hálófülke
  • fürdőszoba
  • terasz
  • terasz alatti tároló

Találja meg otthonát velünk!

Próbálja ki ingatlan keresőnket!

Ingatlan kereső »

Hitelre van szüksége a vásárláshoz?

Díjmentes hiteltanácsadás!

Ingyenes hitelügyintézés »

Eladná / Kiadná ingatlanát?

Miért várna! Nálunk Ön az első!

Így dolgozunk »

+36 / 70 602 0041 Várjuk hívását!

Hívjon minket bizalommal!

Kapcsolat »


Weboldal készítés és üzemeltetés: mWeb